Проект Большой Московской и ЛОС будет готов к 15 апреля

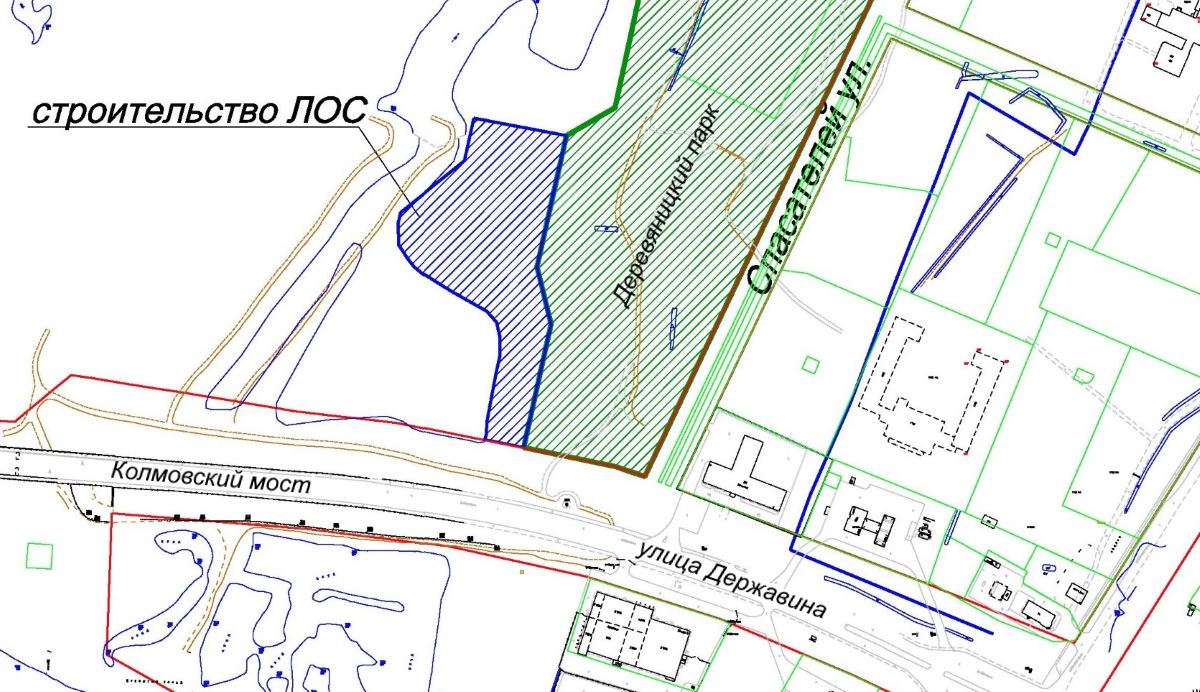
По муниципальному контракту к 15 апреля должна быть готова проектно-сметная документация на строительство продолжения Большой Московской улицы до улицы 20 Января с реконструкцией улицы 20 Января и выходом на Деревяницкий

По муниципальному контракту к 15 апреля должна быть готова проектно-сметная документация на строительство продолжения Большой Московской улицы до улицы 20 Января с реконструкцией улицы 20 Января и выходом на Деревяницкий мост.

Об этом рассказал председатель городского комитета архитектуры и градостроительства Евгений Жилин на встрече с общественным советом администрации города. По его словам, вдоль улицы расположатся ливневые стоки для отведения воды. Это тоже будет спроектировано. Такое требование сейчас существует для всех современных строящихся дорог.

Все стоки будут выведены в локальные очистные сооружения (ЛОС), проектно-сметную документацию на которые тоже в настоящее время разрабатывают. Очистные сооружения расположат рядом с Колмовским мостом и Деревяницким парком.

Начать строительство продолжения Большой Московской улицы планируют в 2023-2024 годах.

Фото: Управление по работе со СМИ администрации Великого Новгорода

Последние новости

ОБЩЕСТВЕННЫЙ СОВЕТ ПРИ ФАС ОБСУДИЛ ИТОГИ РАБОТЫ ВЕДОМСТВА ЗА 2024 ГОД

Этот и другие вопросы вошли в повестку первого в этом году заседания общественного совета при службе   Заместитель руководителя ФАС России Андрей Цыганов выступил с информацией об итоговом докладе к расширенной коллег

На субботней прогулке с врачом пожилые новгородцы узнали о нюансах ЗОЖ в серебряном возрасте

Анонсированный ранее региональным минздравом День здоровья состоялся в Великом Новгороде.

Марфа Николаева произвела невероятное впечатление на членов жюри «Звезды-2025»

Сегодня, 5 апреля, в эфире телеканала «Звезда» показали премьерную серию нового сезона международного конкурса «Звезда-2025».

Преобразователь частоты

Все преобразователи проходят контроль и имеют сертификаты с гарантией

Здесь вы можете узнать о лучших предложениях и выгодных условиях, чтобы купить квартиру в Бугульме

Комментарии (0)

Добавить комментарий

Ваш email не публикуется. Обязательные поля отмечены *